| Kungsholmsateljén i S:t
Eriks gamla bryggeri på Garvargatan 17 i Stockholm |

| Bryggeriet
bestod från början av två stora, sammabyggda huskroppar som sträckte
sig i
nord-sydlig riktning utefter västra sidan av Kungsholmstorg. Idag finns
bara den södra delen kvar, den nyare, som byggdes 1900-03. Den norra,
mörkare delen, med kupolen, stod färdig 1890 och
revs i
början av 1980-talet. Kungsholmsateljén låg inne på gården runt hörnet uppe på Garvargatan, och hade inretts av Svenska AB Nordisk Tonefilm. |



| Svenska AB Nordisk Tonefilm
hade sedan december 1929 ägnat sig åt att sälja ljudutrustning till
biografer, men ville så småningom även etablera sig som ett
inspelnings- och
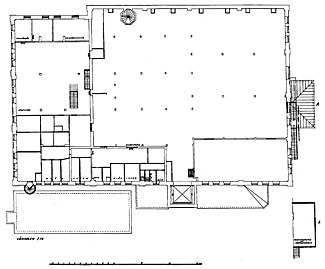
distributionsbolag. På sommaren 1934 lät Tonefilm därför inreda en provisorisk inspelningsateljé, med loger och verkstäder, i hyrda lokaler i S:t Eriks gamla bryggeri på Garvargatan 17 på Kungsholmen i Stockholm. Man byggde även en liten tillbyggnad för transformator och omformare. Ateljén fick måtten 31 x 21 meter. Tonefilm hade ansökt om bygglov för ateljén på Garvargatan den 5 juni 1934. Ansökan tillstyrktes den 12 juni och slutbesiktningen godkändes den 4 september 1934. Ateljéns optiska tonkamera kom från Nordisk Tonefilm i Danmark och var utrustad med Petersen & Poulsens senaste noiseless-teknik. |

![]() |
![]() |
| Våning
1 |
Våning
2 |
| Svenska AB
Nordisk Tonefilm hade även ambitionen att bygga en permanent
inspelningsateljé i Nora
trädgårdsstad i Danderyd, men dessa skrotas efter en uppgörelse som slöts
den 26 januari 1935 mellan danska
A/S Nordisk
Tonefilm och
Svensk Filmindustri. Genom avtalet fick SF möjlighet att använda Petersen & Poulsens noiseless-teknik, som A/S Nordisk Tonefilm ägde patenträttigheterna till, mot att det danska bolaget fick ta ut licensavgifter på den film som SF spelade in med den brus- och knasterbefriande metoden. ![]() Från inspelningen av filmen Smålänningar, 1935. P.O. Pettersson vid tonkameran som är tillverkad av Petersen & Poulsen. Lennart Unnerstad vid mixern. Uppgörelsen med A/S Nordisk Tonefilm innebar dessutom att Svensk Filmindustri fick överta Kungsholmsateljén på Garvargatan. SF hyrde sedan lokalerna av A.B. Stockholms-Bryggerier fram till 1949 och använde dem som lager, reklamateljé och snickarverkstad, men även som inspelningsateljé i reserv samt för en del musikinspelningar och till eftersynk. |


| Efter
branden på Garvargatan såg SF:s produktionsledning till att istället
ha sina reservinspelningsutrymmen i Råsunda. Det var förmodligen vid
den
här tiden som ateljén med namnet ”Ladan” kom till. ”Nya ateljén”, som
senare kommer att kallas för Studio 4, stod färdig 1953-54. Lagerutrymmen att ta i bruk hade SF sedan tidigare i kvarteret Svärdfisken, där biografen Skandia låg, och de första åren efter branden använde man lokaler på Drottninggatan 82 som lager, porten till vänster om biografens entré. ![]() Kvarteret Svärdfisken. Den här delen av Tunnelgatan heter idag Olof Palmes gata. Men ganska snart samlade SF istället allt som skulle förvaras och arkiveras i stora källarutrymmen som gick att nå både från Tunnelgatan 13a och Apelbergsgatan 50. Det gick även att ta sig dit via trappor och gångar under Skandia-biografens scengolv. De nya lagerlokalerna kallades Centrallagret. Centrallagret drabbades av en förödande översvämning 1974. |
|